
Sharifi-Ha House
ARCHITECTS
NextOffice
SUPERVISIONS
Shahnaz Goharbakhsh, Alireza Taghaboni
DESIGNER
Alireza Taghaboni
STRUCTURAL CONSULTANT
Bastanpol company, Vahid Qarakhniniya
PROJECT ASSOCIATES
Mojtaba Moradi, Negar Rahnamazadeh, Asal Karami, Majid Jahangiri, Masoud Saghi, Hossein Naghavi, Fatemeh S.Tabatabaeian, Iman Jalilvand
TEAM
Alireza Taghaboni, Mohamad Motamedinia, Ebrahim Roostaee, Sepideh Sarrafzadeh, Maziar Ghaseminia, Majid Jahangiri, Hoodad Zoroufchiyan, Peyman Nozari, Roza bemani, Arian Spiridonoff, Vahid karamad, Fatemeh Tabatabaeian, Shima Mohammadi, Siavash Shareghi, Homa Asadi, Farideh AghaMohammadi, Mohammad Kahidi, Mehrdad Raoofi, Sahar Mehdizadeh, Gorgin Sharifi, Ali Maleki Kahaki, Sajad hosseini, Tina Shahnazari, Mehdi Pourbasat, Asal Karami, Amin Zargar, Sarvenaz Rezae
SENIOR CONSULTANT IN DETAIL
Shahnaz Goharbakhsh
DETAILING DESIGN ASSOCIATES
Bahoor Office (Hamid mohammadi, Amir Taleshi)
PHOTOGRAPHS
Parham Taghioff, Mandana Mansouri, Salar Motahari, Majid Jahangiri
AREA
1400.0 m2
YEAR
2014
LOCATION
Tehran, Iran
CATEGORY
Houses
Text description provided by architect.
Uncertainty and flexibility lie at the heart of the design concept in Sharifi-ha House. These changes may occur according to changing seasons or functional scenarios of floor plans.
The sensational, spatial qualities of the interiors, as well as the formal configuration of its exterior, directly respond to the displacement of turning boxes that lead the building volume to become open or closed, obtaining introverted or extroverted character.
Like many other urban plots, the land for this project had a noticeably narrow façade-width compared with its length. Consequently, our expertise in transforming a two-dimensional façade to a three-dimensional one became indispensable.
Here, the openness /closure of the building volume is a reference to traditional Iranian houses, which would dynamically serve as seasonal modes of habitation by offering both a Zemestan-Neshin (winter living room) and Taabestan-Neshin (summer living room) to their residents.
In summertime, Sharifi-ha House offers an open /transparent /perforated volume with wide, large terraces.
In contrast, during Tehran’s cold, snowy winters the volume closes itself, offering minimal openings in total absence of those wide summer terraces.
In this project, the challenges to the concepts of open/closed typology (introverted/extroverted character) led to an exciting spatial transformation of an ever-changing residential building.
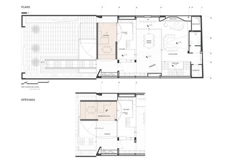
The House is distributed over seven floors: the two basement floors are allocated to family conviviality, fitness facilities, and wellness areas, while the ground floor hosts parking and housekeeping rooms.
Public activities all happen on the first and second floors, and the family’s private life takes place on the third and fourth floors.
The project consisted of four major parts; the fixed volume of the structure, the void, and the fixed volume and the mobile volume, respectively.
When the turning boxes are closed, the building captures sunlight throughout the space of the central void, which also connects the two fixed volumes by suspended bridges.

The house adapts to the functional needs of its residents. For instance, depending on whether there is a guest or not, the guest room (located on the second floor) can be reconfigured for different purposes.
Similarly, home office and breakfast room (turning rooms on the first and third floors) can change the formality of their appearance according to their residents’ desire.
In other words, there is always the possibility of having different seasonal or lighting scenarios, some of which have been already considered in the BMS program of the project.
From the initial design steps, we noticed that three pine trees outside could be incorporated into the spaces of the interior. Now, in the open mode of the house, the trees are pleasantly captured by the window frames.
Stepping back for about three meters from the permitted construction boundary line allowed us to provide splendid daylight for the basement floors by inserting a glass fountain.
The fitness and wellness areas are accommodated between this fountain and the basement pool where reflective installations reverberate the water’s radiance all over the space.
The applied manufacturing technique for the turning mechanism was in fact a simple one; the same method which is currently employed in turning theatrical scenes, turning the floor of car exhibitions, steel companies and the shipping industry in Iran.
But as our client himself was into importing CNC and other similar industrial German machines, he preferred the structural system to be fabricated in Germany.
In doing so, he could engage his employees in the manufacturing process and thus train them for future maintenance purposes.
Details of the handrails and air-penetration controlling methods were major issues considered in developing the design of the turning boxes. Designing foldable handrails and refining the edges of the boxes happened to be our feasible solutions.
Considering the specialties of this kind of architecture, the structural system was inevitably a customized one.
After digitally modeling the structure, a series of SAP2000 analysis were undertaken to examine static/dynamic performance of the proposed system.
Being partially moveable is the dominant feature of this structural assembly, which was contemplated throughout the fabrication process by the German manufacturer company. The main loads all rest on the beams of the living rooms.
Due to the various configurations the turning boxes may take, the loading calculation has been estimated based on the largest possible loading value applied to the system.
Additionally, in order to prevent structural deformation controlling the probable vibrations in the turning boxes was taken into account during the design/calculations of the structure.
The house was titled Sharifi-ha House, in honor of traditional Iranian mansions.











































