
Hut Near The Lac De Joux
ARCHITECTS
Kunik de morsier architectes
LOCATION
L'abbaye, switzerland
CATEGORY
House
AREA
160.0 m²
YEAR
2015
WOOD WORK
Etienne berney sa
COLLABORATORS
Guillaume de morsier, valentin kunik
WOOD TIMBER ENGINEER
Charpente concept
PHOTOGRAPHS
Eik frenzel
TIMBER
Aubert construction bois sàrl
Text description provided by architect.
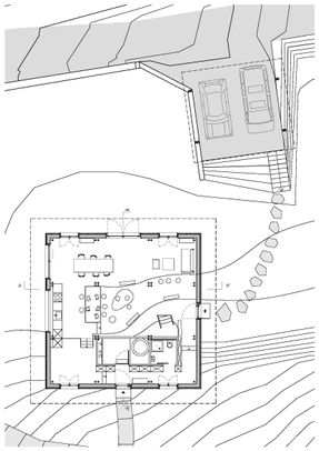
It is in the very special geography of the Swiss Jura, near the Lac de Joux (which freezes over in Winter), close to the ski slopes, hiking trails and bike routes where the R. family wished to settle.
It is in this very special universe that the architects designed a singular space in response to the location and needs of the family by establishing strong relationships between inner spaces and territory.
The ground floor adapts to the natural terrain’s gentle slope with four steps that follow the exceptional stone formation surrounding the hut.
This delicate adjustment to the topography allows collective spaces such as the living room, the kitchen or the workshop to open to the outside.
The hut doesn’t favor one direction but rather a 360-degree relationship with the lake, the surrounding mountains, and the pastures.
Above this mineral soil, as if suspended in the air, are four bedrooms and a bathroom.
Between these closed private cells are other shared spaces such as an office, TV space, comics library and a large play area for children.
Collective spaces take advantage of three-dimensional space and give the house its richness and light.
Built entirely out of wood, the hut uses an original and innovative construction system where the framing and walls fit together and slide into each other.
The façade is made of larch, the structure made of larch and fir, the insulation made of wood fibers and the partition walls made of fir panels. Wood is omnipresent here and gives a unique character to the building.






















