
Kindergarten Over the Vineyard
LOCATION
Limbach, Slovakia
PROJECT YEAR
2015
CATEGORY
Kindergarten
Text description provided by architect.
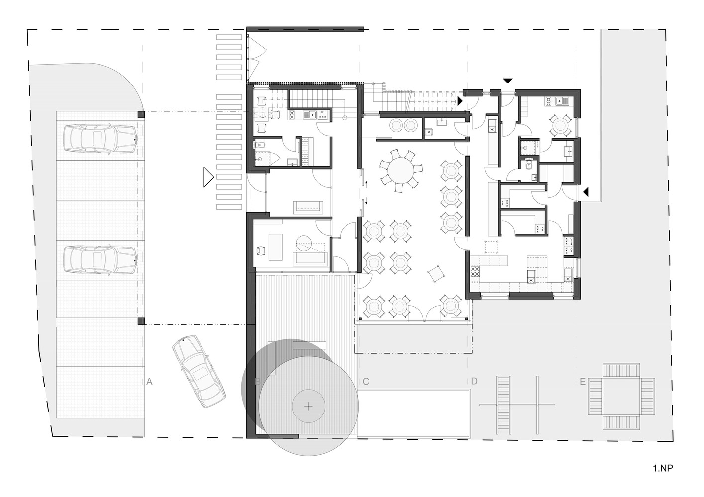
Designing the kindergarten at the extremly small area, in the winery village Limbach close to the Slovak capital Bratislava, was for us very challenging project.
At the area of only 935m2 we needed to place classrooms for 40 children, dayroom, office for director, kitchen with facilities, playground spaces and parking area for parents and staff.
Placement of classrooms at the upper floor was at the end the only possible solution. There are three pavilion in the kindergarten with the capacity of 10 children at the age of 3 years, 20 children at the age of 4-5 years and 10 children at the age of 6 years.
Because of the lack of the space we had to place the technical section in the highest attic part of the building above the staircase.
The main visual element of the object is for children an easy comprehensible theme of house with a sloped roof and playful windows.
The south-east orientation of the windows creates a direct visual contact with vineyard and this way also visually enlarges the green area around the object.

















