
22 Haganim st. Ramat Ha’sharon
CATEGORY
Housing
LOCATION
Ramat Hasharon, Israel
ARCHITECTS
Bar Orian Architects
AREA
10000.0 m2
PROJECT YEAR
2015
LANDSCAPE ARCHITECTURE
Ofer Margalit
CONSTRUCTION TEAM
David Engineers
HEAD CONTRACTOR
Tal Hayut Building Co
PROJECT MANGEMENT
Etgar Al engineering
Text description provided by architect.
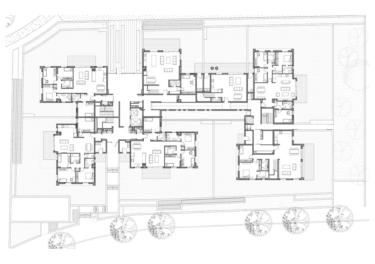
The thirteen-story building at 22 Haganim Street in Ramat Hasharon is situated on a large parcel of land (3500 sq. meters).
“22 Haganim st. is a unique landmark in the development of an architectural language we have been exploring and developing for the past several years – building ‘Villas in the Air’.”
This new language marks a breakthrough of the traditional typology of a building with a ground floor, topped by story after story of identical floors, and a penthouse.
The Villas in the Air mark a departure from repetitive, typical floors, and replace them with a variety of types of floors on top of each other, creating large rooftop terraces along the entire height of the building.
Daring enterprising and bold architecture, combined with the special City Planning specifications for the area, on the outskirts of Ramat Hasharon, enabled this innovation - The construction volume is larger than the sum of the designated building rights, presenting us with the opportunity to play with the mass and sculpt it anew, as we were not bound by the limitations of typical urban plots that mandate adhering to rigid lines of construction.
We thus had the opportunity to design 17 different apartment types (for a total of 56 units) each of which offers a large terrace, of the size that only garden apartments and penthouses have enjoyed to date. In addition, we planned several independent garden apartments and unique duplexes.
Furthermore, despite the complex and changing program, the project was planned so that the construction and the plumbing system envelop the building at identical points all along its length.
This creates open, flexible spaces that can be changed in accordance to the tenants’ needs.
We enjoyed the benefits of prefabricated construction – quick work and a unified outcome that combines a variety of finishes – black aluminum plates that highlight the console-like boxes, black aluminum glass cases, and light natural stone for the building surface. Unlike standard residential towers, the lobby on each floor is ventilated. The lighting is sunlight that brings in the view open from all public places in the one-of-a-kind 22 Haganim st.























