
Ampersand Building
ARCHITECTS
Darling Associates
PHOTOGRAPHS
Peter Landers Photography
QS/PM
Canmoor Projects Limited
M&E ENGINEERS
URS Scott Wilson
CONTRACTORS
Mclaren Construction Ltd.
STRUCTURAL ENGINEERS
Furness Partnership
AREA
66400.0 ft2
CATEGORY
Renovation
LOCATION
London, United Kingdom
PROJECT YEAR
2015
Text description provided by architect.
Architects Darling Associates have completed Ampersand, a 66,400 sq.ft. prime office and residential building in the heart of Soho for developer Resolution on behalf of the owner, Peterson HK. The project comprises 4 floors of grade A office space and two penthouse floors containing 10 luxury apartments.
Ampersand was conceived through a creative collaboration between architect, artist, furniture designer, graphic designer and interior designer leading to a project that embodies Soho’s unique character of commerce and creativity.
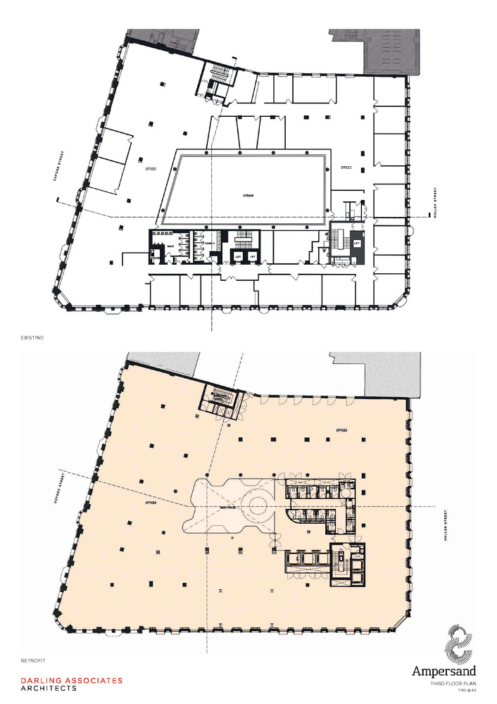
Ampersand at 178 Wardour Street is an extensive refurbishment of an existing mixed-use building and the external retrofit of the building’s façade. Darling Associates also designed two new penthouse floors, which had to be completely concealed from public view at street level, in accordance with planning regulations.
Externally the previously unprepossessing building has been transformed. The façade has been fully upgraded, including the reorientation of the entrance to the corner of Wardour and Hollen Street. Darling designed external copper fins and internal lighting visible from the street, make the building glow in the sunlight and at night.
The light-filled reception area is fully glazed and can be viewed from the street. The clearly visible internal space is designed as a creative contribution to Soho and is intended to draw passers-by into the publicly accessible reception area.
Huge glass windows frame the striking reception desk, which is an art installation and the result of a collaboration between graphic designer Tom Hingston and Darling Associates.
At the heart of the building a central oak spiral staircase designed by artist Paul Cocksedge. The stairway is planted with a variety of 750 vivid green plants.
The staircase has central seating and meeting areas, and bespoke light fixtures that double up as inspiration ‘pinboards’. The stair’s distinct spiral shape was also the guiding principle for the building’s graphic identity. Elements of the spiral theme have been subtly used throughout including in the design of the reception desk/artwork.
The warm-toned, living oak stair at the building’s heart is deliberately contrasted with the simple materials palette of glass, grey ceramic and concrete in the rest of the building. The office spaces are pared down and meticulously detailed, encouraging the views of Soho to take precedence.
Seamless internal glazing around the atrium on all the office levels offers 360 views of the stair. Darling Associates has respected the office spaces’ original character by retaining the exposed waffle concrete slab ceiling and leaving the varied ceiling heights. The greatest ceiling height is 3.26m.
Exposed aluminium finished air handling diffusers have been incorporated on the ceilings to add a sleek modern feel. Darling moved the core of the building which has resulted in a more open office space and the average floor plate is now 16,000 sq. ft.
The architects have designed an unusually large 2,100 sq. ft. sun terrace on the fourth floor with views over central London. The building’s exterior at this level is covered with a living wall of low maintenance irrigated flowering plants and accents of copper and bronze.
The design embraces sustainability principles through a combination of passive design, energy efficiencies, and renewable technology.
Generous cycle storage and changing facilities have been provided. The refurbishment targets a BREEAM Very Good rating. The 10 penthouse apartments are due to complete in July 2015, half of which have been pre-sold.





















