
Cedar House, Pine House
YEAR
2016
LOCATION
Tokyo, Japan
CATEGORY
House
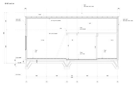
Text description provided by architect.
This project is a village house of the small village surrounding environment mountains.
The form of the building is very simple.
So, there are so many Japanese cedar, pine and white cedar in this village.
In this time, we chose cedar and pine, designed cedar house and pine house. We can be also design white cedar house,oak house and so on.
We use only materials of the area, The façade and the interior decoration of of each building volume change.

T +81 90 98067317 F +81 553 441195
S Plus One Architects S PLUS ONE 建築設計事務所
1562‑3 Katsunuma, Katsunuma‑cho, Koshu‑shi, Yamanashi, Japan 〒409-1316 山梨県甲州市勝沼町勝沼1562ー3














