
The Olive Tree House
ARCHITECTS
Eva Sopeoglou
LOCATION
Chalkidiki, Greece
AREA
21.0 m2
PHOTOGRAPHS
Elias Sopeoglou
PROJECT YEAR
2016
CATEGORY
Houses
MANUFACTURERS
AkzoNobel, Isomat, METALSO, Trumpf
MAIN CONTRACTOR
Metalso
Text description provided by architect.
The client brief for this small summer house located in Halkidiki, Greece called for a low-maintenance weekend home located on a pristine olive grove hill overlooking the sea, and beyond towards the famous monasteries of Mount Athos.
The project is highly experimental and employs cutting-edge digital CAD/CAM technology in an innovative way.
All building components were pre-fabricated, nevertheless, the design itself carefully considered the sun’s position to provide shading and to complement the views.
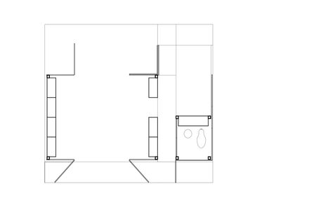
The 3m by 7m rectangular plan is aligned to the cardinal points and it is sub-divided into smaller rooms. A corridor connects these spaces but also aligns with the adjacent olive trees which, thus, become integral to the house’s layout.
The exterior envelope is a lightweight metallic surface which wraps around and it is movable, to provide maximum flexibility.
The envelope’s perforated textile-like pattern is inspired by the shade of the olive trees. As the sun moves during the day the interior spaces are filled with ever-changing shadows.
The envelope’s perforated textile-like pattern is inspired by the shade of the olive trees. As the sun moves during the day the interior spaces are filled with ever-changing shadows.
































