Prinzi An Office Between Warehouses
ARCHITECTS
Cotignola - Staricco - Tobler
MANUFACTURERS
Hunter Douglas Architectural (Europe), Milesi, Tilo
STRUCTURE ADVISOR
Alberto Catañy
PHOTOGRAPHS
Marcos Guiponi
AREA
500.0 m2
YEAR
2016
LOCATION
Montevideo, Uruguay
CATEGORY
Offices
Text description provided by architect.
The office functions as an element that connects and structures the compound of warehouses and sheds that are property of Prinzi S.A.
The project was commissioned by a firm engaged in the import and export of products for the meat packing industry, which wanted to relocate its offices to its distribution center set in the traditional “La Comercial” neighborhood of Montevideo, Uruguay.
This is how the old industrial area became a logistics hub capable of centralizing the client’s operations.
The proposal focuses on articulating the various warehouses and sheds to become the operational center of the physical plant’s 2,500 sqm.
This is achieved thanks to the central location of the lot destined to offices, within the existing group of constructions belonging to different periods, of varied size and purpose.
The design for the new offices partly reuses these constructions, namely the areas that used to house the locker rooms and dining spaces of the old industrial center.
The existing ducts running along the facade—which originally sustained the service areas of the factory—allow to conceive a ‘deep’ facade, thus tending to one of the client’s main concerns: to separate and give intimacy to the offices without surrendering light-filled workspaces.

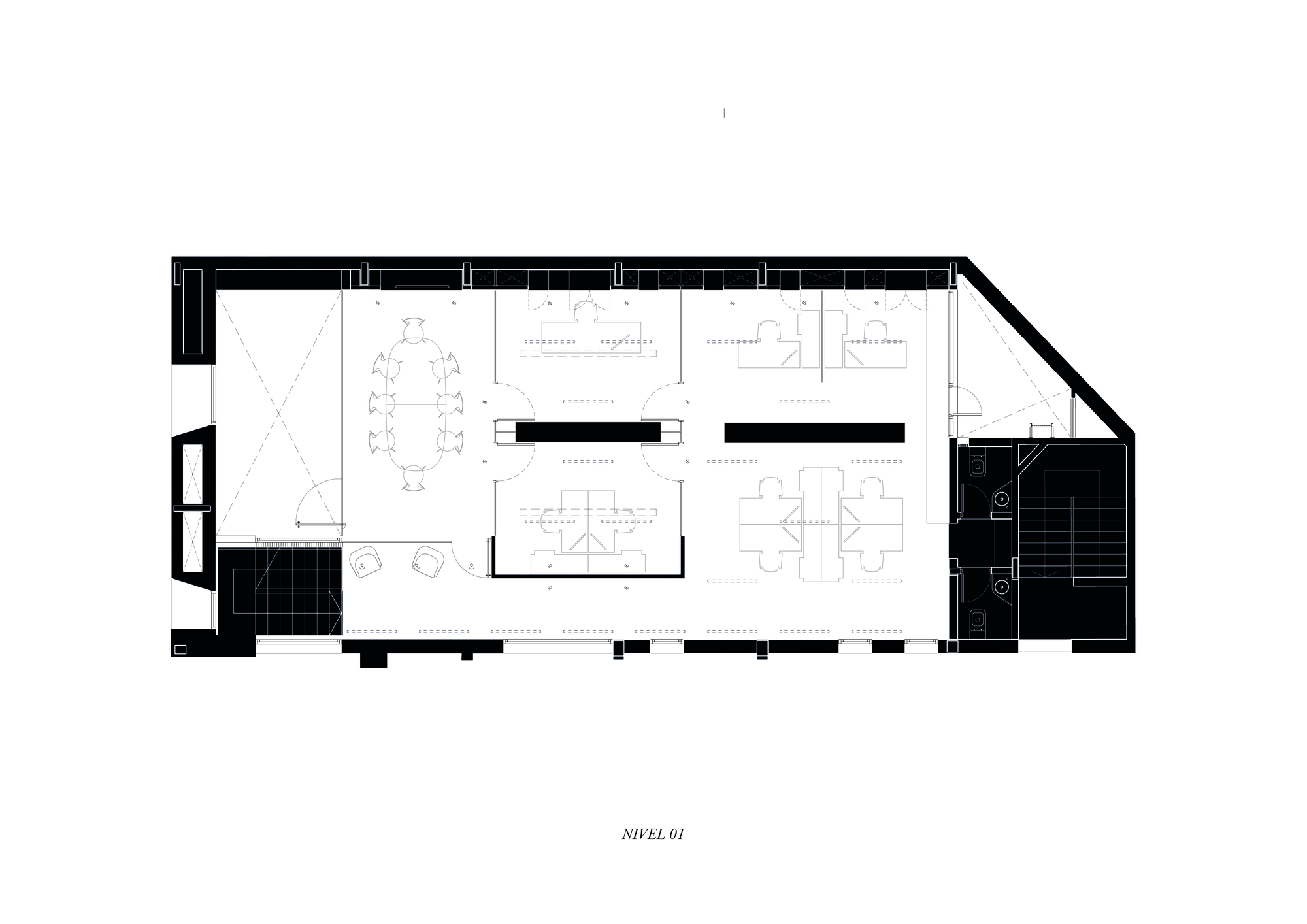
Once the issue of connection has been resolved—which is the purpose behind the entire intervention—, the proposal is simply defined by means of a staircase and two patios which connect and illuminate the office’s two open-plan levels.
Cotignola, Staricco, Tobler is an architecture studio founded in 2013 and based in Montevideo. The company maintains a diversified practice within the realm of architectural design, especially in the field of housing and commercial offices.
The members share their practice with a committed teaching activity at different Institutes and Design Studios of the Universidad de la República in Uruguay.



















