
House In Hertzliya Pituah
ARCHITECTS
Levin Packer architects
ARCHITECT IN CHARGE
Adela Tzikinovsky
TEAM
Rona Levin, Ruth Packer
MANUFACTURER
B&B Italia, Roda, Viabizzuno, fervital
TEXT
Rona Levin
PHOTOGRAPHS
Amit Geron
AREA
477.0 m2
PLOT AREA
425 m2
YEAR
2016
LOCATION
Hertsliya, Israel
CATEGORY
Houses
Text description provided by architect.
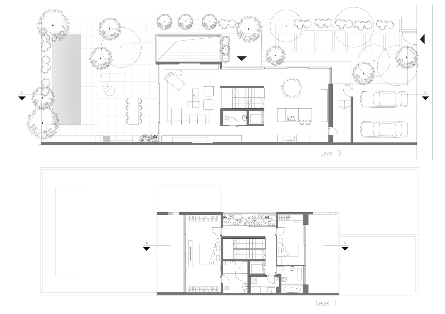
The project is a private urban house of approximatively 200 m2 in Herzlia, situated on a 425 m2 site.
The white modernist house is a perfect rectangle with dimensions of 8/17. The rectangular structure is kept, while volumes are subtracted in favor of balconies. The sloping zing roof is also integrated in the rectangular structure.
The plot is long and narrow with a blind wall, shared with the neighbour's house. This wall actually has a main functional role.
It starts in the kitchen area where it consists of kitchen cupboards, then turns into a floating counter of the kitchen, overlapping a bench, the bench turns into a fire place and continues outside as a long pot for plants where it is again overlapped, but this time by the outside bar counter.
This wall continues from one side of the house till the end of the plot, being a plastic play of forms itself and at the same time a key functional and compositional line in the house.
As the site is narrow, long and small, the goal was to enlarge the view to all sides of the garden, to allow maximum openness of the ground floor to it, this way letting the garden penetrate through.
The garden accompanies the house and becomes an integral part of the ground floor. It is continuous through the whole plot.
It starts from the very entrance at the fence of the plot with an oblong garden that leads to the main door entrance of the house, then proceeds and reaches the garden with the pool at the bottom of the plot.
Since the ground floor area is only 187 m2, there was no question of putting divisions that can block the view. Thus the staircase, located in the center of the space, creating a vertical axis movement and dividing the floor into two areas, became transparent to let the outside come through.
The transparency is achieved by a gap in the wall, filled with delicate thin metal lines that underline the verticality of the element and act as a mindful continuation of the wall. The airy staircase lets the space be completely discovered.
The ground floor contains two public areas, the living space and the kitchen and dining space. As mentioned above, there is a full linkage between those spaces, accomplished by the staircase's transparency, yet the staircase positioning provides two separated functional areas.
The kitchen and dining area overview the entrance garden, while the living area is completely connected to the back one.
The architectural design is minimalistic, rich in details and materials. Natural oak, natural stone, black metal, cement plaster wall, colored textiles, soft wild plants in contrast with the linear strong lines of the architecture.
The lighting is very precise and is an integral part of the architecture, providing long lighted accents in carefully selected areas.
Repetitive materials create uniformity, natural oak for flooring, stairs and entrance door, black metal for the light fixtures, fireplace, stairway's railing and balconies' railing, black aluminium for all openings and cement plaster walls. On the upper floor are situated all the private bedrooms.






















