ARCHITECTS
New Wave Architecture
LEAD ARCHITECTS
Lida Almassian, Shahin Heidari
CLIENT
Teb Zist Bonyan
DESIGN TEAM
Azin Babakhanlou, Maryam Ayoubei, Ainaz Rastegar, Sara Milani nia, Soheila Zahedi, Zahra Hamedani, Sara Farahani, Maryam Amanpour, Shirin Ziaei, Sheida Ghotbi, Maryam Marefdoust, Neda Roghani, Neda Dehghani, Mohammad Keshavarzi, Mona Ramzi, Tina Yavarian, Sahar Arabgari
YEAR
2016
LOCATION
Rasht, Gilan Province, Iran
CATGEORY
Hospital
Text description provided by architect.
Since the second half of twentieth century up today, the architectural design of hospital buildings has faced great changes.
These changes are coming from vital role that these types of buildings will play in city context and society as urban features.
Wide Surveys on typology of current health centers in IRAN leads to such disappointed results, for years these buildings have been built on base of repetition of some pre-designed blocks, which are covered with a shell around as building and finalized as building of hospital.
So complicated network of path are generated which mostly are very narrow and dark corridors that arouse sense of fear and stress in users more and more, hence this is the time to redefine and re-evaluate the values that are affecting hospitals and healthcare centers quality of services that leads users to calmness during their experiences in these types of centers.
Designing hospitals is not becoming too much problematic issues just because of its mostly huge scale in design but the critical points comes out as it should be considering interconnection of such very complicated functions that covers areas from medical science to engineering, psychology…etc.
Those mentioned areas are always faced with vital changes by time, even day by day. Best solutions are desired as inevitably these types of places affecting peoples feelings so directly.
There are values that should be considered which persuade comfort feelings and reduce stress and pain in patients, like perfect distribution of areas, shape of volume, alignment to site’s context, view to outside, green spaces, furnishing, materials, color and light.
Pars hospital of Rasht is belonging to private section as owner, of course these private units seeking their profits in creative and pioneer designs that are becoming very effective motivation points for having best costumer service and attracting more users.
So for these units, users are considered both precious guests for the hospital as well as demander of healthiness whom pay for it; The better buildings quality, attract more customers, give better services and earn more profit, this is the goal.
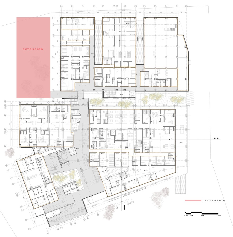
The pars Hospital of Rasht is built in overall 30000 sqm with almost 160 beds, it is located adjacent to one of most crowded roads of Rasht city with high possibility of rising in noise pollution in future.
For having less affection from sound pollution, the expansion of the building in the site is in a way to have most distance from road. In accordance with Context of the city Rasht, designer tries to consider sloppy volumes so in this way apparently continuity of sightseeing preserved.
The concept of design in ground floor coming from having wide space with combination of diagnostic spaces, emergency parts and Outpatient clinic which are connected to other sections vertically an horizontally through main transparent Atrium, play vital role of merging buildings sections into one single entity and acting as organizer of interior pedestrian path, provide coherency, forming hierarchy between public and private areas and creating light space with efficient usage of daylight and less using electrical energy.
Preservation of Continuity of users movement beyond remedial sections in all parts of building is afforded in a way that wouldn’t makes any interruption between protected and unprotected areas.
This building and its specific generated spaces unlike the other common types of health centers are very bright spaces, which in composition to specific colors increase efficiency of daylight usage in interiors.
The other point which affects our design was about designing in a different way, as it seems that remedial spaces are suspended through the so bright volume of the building so apparently with this clever division between spaces the topic of Infection control debate is controlled in perfect way.
Backing and supporting sections which almost so crowded and faced with fire hazard have been located with some distance in the form of three sloped volumes in two levels that defined their abundance with a green line around and have very adequate natural ventilation in between that is desired for medical instruments, of course this ventilation is avoided in remedial sections in building cause through these part we wont to expand infections in any case.
This atrium present very good potential for designing the building of the hospital, a place that needs more compatibility with the soul of technology and its growing speed specifically in this area of science, an intelligent inspiration behind of design is desired to create spaces with great possibility of adoption and transformation in the time of necessity.
Future possible extension of the hospital is considered in west-north side of the building.
Entrees to hospital are divided in three types of main entrance in south side and emergency door in east side of building and finally there is helipad in roof that prepares the vertical access of the building. All the accesses are connected in atrium and then generated through the building’s sections.
The whole volume and form of the facades have vital influence in invitation the users and support their feeling of trust to these places as its specific design criteria tries to prepare a place of calm for patience and their attendances.
Days and nights in this building will give them sense of liveliness, as in the days bright spaces with controlled penetration amount of natural light inside with nice colors in walls and floors makes their stresses less and in night, the bright atrium in the hearth of the building shine like star that shows path of health and improve sense of hope to life for users and viewers outside.











































