ARCHITECTS
Studio Wills + Architects
C&S ENGINEER
Civil and Geotechnical Associates
ARCHITECT IN CHARGE
Ng William
DESIGN TEAM
Ng William, Wu Shan Yat
QUANTITY SURVEYOR
BKG Consultants Pte Ltd
CARPENTER
Sin Hiap Chuan Wood Works
MANUFACTURERS
Duravit, Kawajun, Toto, Acor, Caesarstone, Claybrooks, Duravit & Claybrooks, Escenium Haus, Goodrich Global, Keentech Aluminium & Glazing, Lamitak, Mosaic Pool Tiles, Nippon Paint, Rice Fields, Royal Grass, Skk, Stile Boutique
CIVIL ENGINEER
Civil and Geotechnical Associates
STRUCTURAL ENGINEER
Civil and Geotechnical Associates
PHOTOGRAPHS
Béton Brut
Text description provided by architect.
The site faces a major thoroughfare, is flat and non-descript.
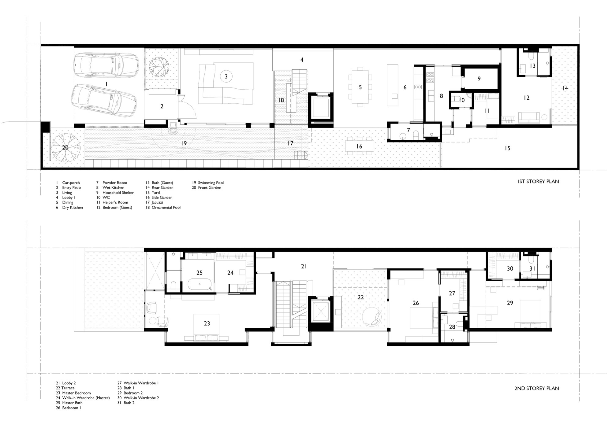
Maximized to its permissible building volume, this can be a potentially over-sized house for a family of 4 (parents and teenage daughters) and their 2 helpers.
The strategy of fragmentation was thus adopted to fragmentize the volume into comprehensible parts.
In order to accommodate a sizeable lap pool of 3 meter width along the side garden, the building had to be set-back by an additional 1 meter beyond the 2m building set-back line.
Resolution was found by a shift of 1 meter back to the 2m building set-back line, in the upper levels, to regain the otherwise reduced building footprint.
This strategy was adopted in the making of the PLANS, SECTIONS and ELEVATIONS resulting in multiple 'gaps', between wall and roof planes, for light and ventilation.
Roof planes were further tilted away from the western sun in order to shelter the interior spaces from the tropical heat and look to the distant whilst escaping the prying eyes of its immediate neighbors.
Shades of grey, contrasting materials and textures and lighting quality were appointed across the entire section of the building to accentuate the fragments and heightens one’s experience of the entire house which oscillates between light and shade, open and enclosed, expansive and compressive spatial qualities.
#5 was a study in the making of tropical living spaces, in a dense urban environment, that is at once open yet private.
PRODUCT BRIEF:
Reinforced concrete (RC) - The roofs constructed in reinforced concrete and finished with a coat of paint, similar to the walls, give expression to a series of ‘shells’ that defines the enclosure and ‘one-ness’ to the entire house.




























