
Occidentului 40
ARCHITECTS
ADNBA
MANUFACTURERS
Investwood, ALUKÖNIGSTAHL, Arxtudio, Class Parket, Evolium Telecom
PHOTOGRAPHS
Cosmin Dragomir, Laurian Ghinițoiu, Andrei Mărgulescu
AREA
2765.6 m2
YEAR
2017
LOCATION
40 Occidentului Street, Bucharest, Romania
CATEGORY
Residential
Text description provided by architect.
Working from the inside out Occidentului Street is a typical street for the central area of Bucharest, with isolated villas in the middle of the yard, wagon-houses, buildings from the interwar period and insertions from the ‘60s and ‘70s.
The gerenal volume is decomposed through several movements and set-backs into a row of smaller houses with different heights that sequence the perception of the building and nuances the relationship to the neighbouring houses and the fragmentary surroundings.
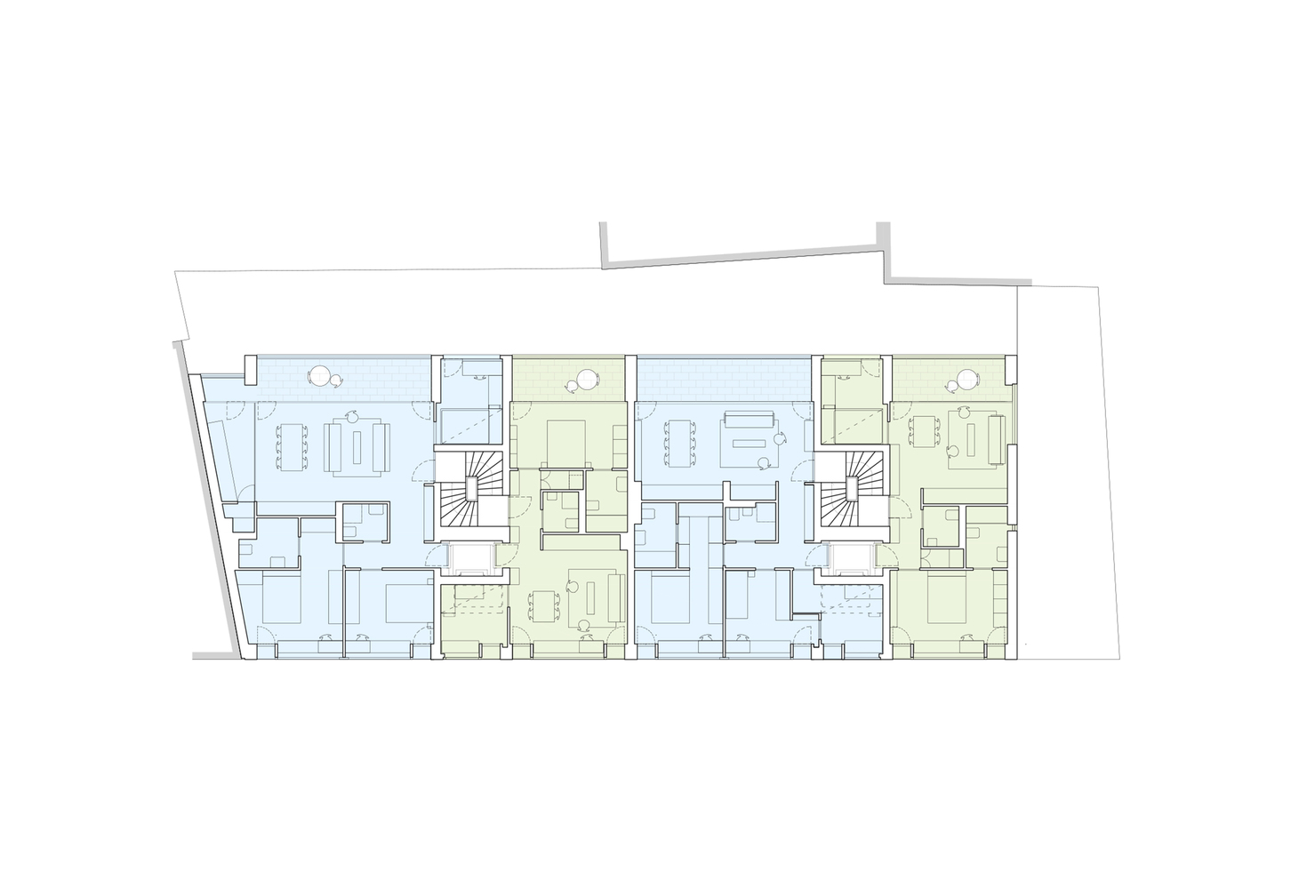
The intervention proposes a community of 20 apartments and a commercial unit on the wide but relatively shallow plot. All units are transversal / double oriented and organized on split-levels.
Instead of typical stacked general floors, here the floors and ceilings move and generate a series of staggered floors, level differences and variations in height and depth – lending the apartments something of the vertical dimension of dwelling.

The open facades reflect the varied interior life of the building and seeks a certain kind of ‘transparency’; the apartment arrangement both defines and is defined by the structural order of the building and clearly reveals itself outwards.
























