ARCHITECTS
Mass Arquitectos
PHOTOGRAPHS
Federico Cairoli
YEAR
2017
LOCATION
Montevideo, Uruguay
CATEGORY
Houses
Text description provided by architect.
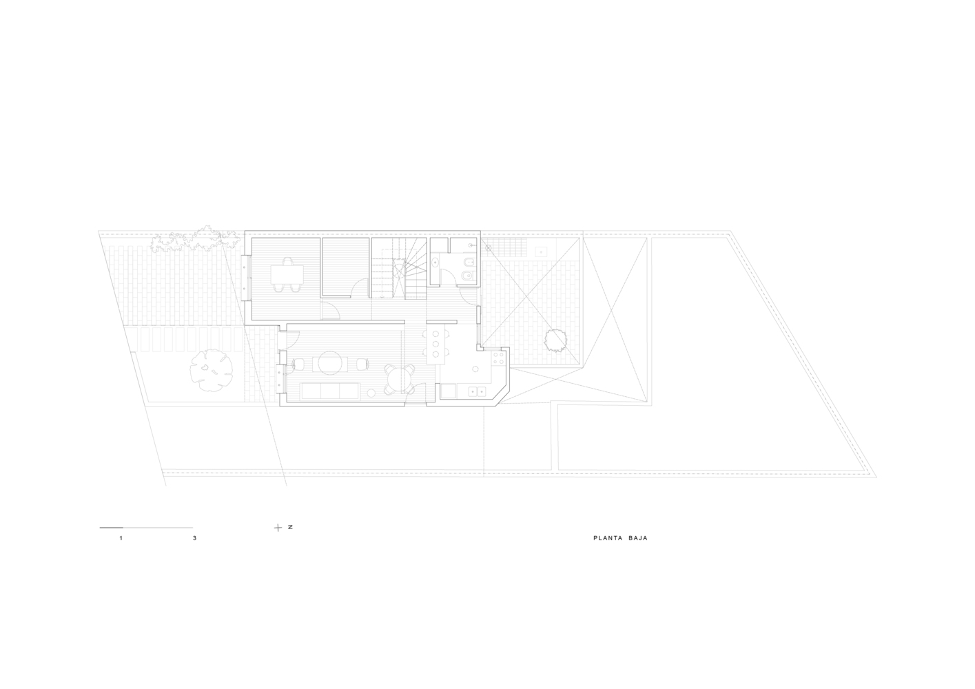
Casa Plaza consists in the remodeling of a small single-family residence in front of the "Plaza de los Olímpicos" in the Malvín neighborhood.
The challenge was to extend and modify in a consolidated context an old house, fragmented and lacking in exterior spaces, seeking to increase relations with outer space while protecting interior privacy .
Within the compact site the house is vertically structured analogously to the tree, a tripartite figure that allows to link the programs with different densities and textures.
On the ground floor the house frees space to create a patio to the north and refines the pre-existing volume of any ornament, generating a podium of simple geometry that uses its introversion to contain the proximity to the street.
This robust monochrome plinth is strategically drilled in its interior to give fluidity and continuity to social areas.
On the plinth the wooden lattice contains the intimate spaces, it supports delicately, without occupying its totality, it is removed to give continuity to the plaza; permeable and dense, the skin shrinks or dilates sifting light and experiences.
On it rests the slab of rustic concrete, crowning the stepped figure of the house.
Materially, the house develops a vernacular language, simple techniques and textures re-signified in a contemporary enclave.


























