
Tree Tops Wild Life Bungalow
ARCHITECTS
Chinthaka Wickramage Associates
LOCATION
Kirinda, Sri Lanka
CATEGORY
Houses
YEAR
2017
ARCHITECT IN CHARGE
Chinthaka Wickramage
QUANTITY SERVEYOR
Sunanda Gnanasiri
PHOTOGRAPHS
Thilina Wijesiri
CONTRACTOR
W. S. Upali
STRUCTURAL ENGINEER
Ranjith Wijegunasekara
MANUFACTURERS
Grohe, Hafele, Bluescope, Rocell, Union Brand
CONSULTANTS
Chinthaka Wickramage Associates
‘Tree Tops’, a holiday bungalow built for an extended family of wild life enthusiasts, stands on an acre of land parcel in Tissamaharama, Southern Sri Lanka, overlooking the famous ‘Yala’ national park; famed for highest density of Leopards in the world.
The land is bounded by the ‘Yala’ main access road from one side and a secondary gravel road on the other, and opens out to the sanctuary of thorny scrub jungles, seasonal waterholes frequented by wild elephants, spotted dear and water birds as well as a great expanse of green paddy fields.
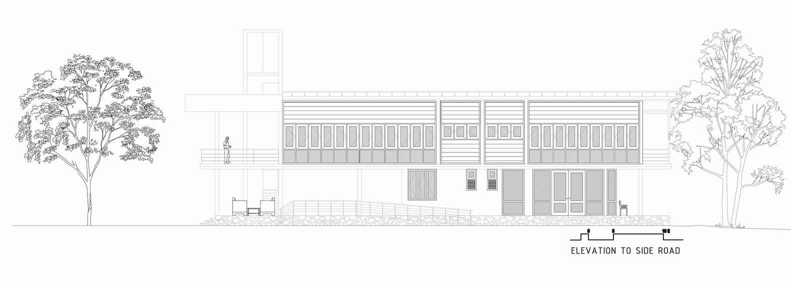
The bungalow itself is orientated along North South axis along the length of the land, to a narrow linear plan form in order to obtain the maximum environmental advantage and panoramic views to the building.
The building foot print is small, but upper levels have substantial cantilevers, with large over hangs to protect it from the hot tropical sun and the monsoon rains.
With a single room thick ‘thin’ cross section, it captures the views and responds to the changing weather conditions and allow the winds blowing across the paddy fields and the scrub jungle, to blow through the building.
A simple and robust form was adapted, to withstand the harsh weather conditions of the region, so that the building will age gracefully, with minimal maintenance.
A subdued and a natural colour scheme of Cement and timber were adopted to the buildings so that it will merge with the natural surroundings.
Limited palette of materials such as concrete, cement, timber, glass and corrugated zinc aluminium roofing sheets were used to create a simple light weight building.
Despite its raised podium and the concrete structure, a gently sloping single pitched roof with vast overhangs was introduced including the use of glass and timbre trellis work, to soften the robustness of the structure.
This further is achieved by the layout, where all public functions are located on the ground floor podium which has enabled less solid walls and more open areas, with only one bedroom for the elderly family members, contributing to the balance of solids and voids of the building.
Upper floor comprises an open dormitory style sleeping areas, allowing the whole upper floor interior to experience the maximum views at tree canopy level.

The use of Dormitory style bedrooms, instead of separate bed rooms have enabled vast expanses of multiple sashed timber framed glass windows, high volumes and undisturbed views across the sanctuary, with ample cross ventilation within the first floor level, leaving a ‘camp site’ feeling within a built and well protected space.
The eastern face of the building with its glass door windows and multiple sashed glazed windows and open balconies welcome the much cooler morning sun.
Eastern Windows are protected by the mono pitched sloping roof, whereas the west facing façade is shielded by a horizontal timber trellis work, protecting the corridor and the interiors from the harsh evening sun.
Timber trellises not only gives a certain softness and elegance to the building exterior, but also contributes to the change of spatial quality within the building by its play of light and shadows, from sun rise to sun set.
‘Tree Tops Wildlife bungalow’, with its simple and versatile character, is excepted to be an oasis and a refuge, for this busy Colombo family, to reinvigorate and rejuvenate their lives, before another round of their hectic urban lives.




























