Taha Commercial Office
ARCHITECTS
Makanpaydar Consulting Compan
CLIENTS
Abbass Ali Rabie, Behnam Jafarpishe
LEAD ARCHITECTS
Ali Moazzeni, Ghazal Asadi
MANUFACTURERS
Nazceram, Jordan, Maryam Tile, Akffa
PHOTOGRAPHY
Hamidreza Bani
AREA
2500.0 m2
YEAR
2017
LOCATION
Isfahan Province, Isfahan, Rudaki St, Iran
CATEGORY
Office Buildings
Text description provided by architect.
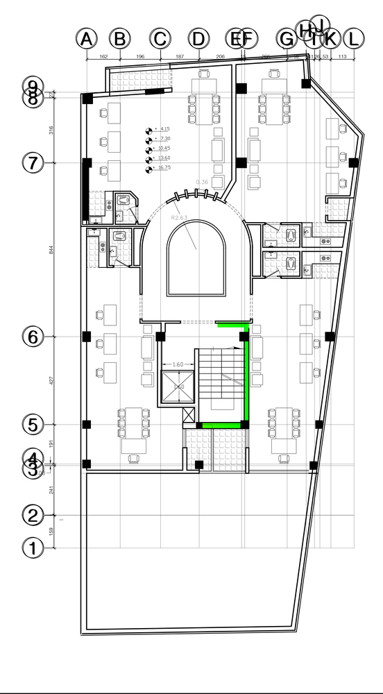
Taha commercial office building occupies 350 square meters with dimensions of 13 ×27. This 10-story building has a 4-floor underground car park, two commercial units on the ground floor, and 20 office units on the other five floors.
Taha building is located near the Emamzadeh Mohsen shrine, one of the Islamic buildings of Isfahan, which is located in the center of the city.
Isfahan is one of the oldest cities in the world with an age of 3300 years. The proximity of Taha building with a historic religious establishment led to the use of motifs and arrays of Iranian architecture in the design of the building.
The needs of the employer and observance of architectural and urban planning standards of the city Isfahan was one of the important factor in the design and implementation of the project.
Another important consideration in the design of this building was the use of suitable openings for illumination and optimum visibility towards adjacent buildings and surrounding alleyways, as well as the use of indigenous materials and colors appropriate to the traditional historical context of Isfahan.
Considering the location of 24 Meters Street in the north of the building, the facade was designed in two dimensions of pedestrians (human scale) and riders (city scale).
It means that the first two floors of the building have a different facade for pedestrians view and the rest of the floors are designed with a distinctive view.





















