
Gheisizadeh Residential Apartment
ARCHITECTS
Ashari Architects
GRAPHIC (DIAGRAMS)
Sara Zahmatkeshfard Shirazi, Amir Iranidoost Haghighi
LEAD ARCHITECTS
Amirhossein Ashari
DESIGN ASSOCIATES / TEAM
Zahra Jafari , Afshin Ashari
DESIGN ASSOCIATES / TEAM
Zahra Jafari, Afshin Ashari
MANUFACTURERS
Dirak Co, Ghazvin Glass, Parvaran
LEAD ARCHITECTS
Amirhossein Ashari
RESEARCH
Elnaz Amini khanimani
RESEARCH
Elnaz Amini khanimani
EXECUTIVE TEAM
Hamid Gholami, Ali Gheisi Zade, Asghar Gerami, Ayoob Hashemi
PHOTOGRAPHY
Parham Taghioff, AmirAli Ghaffari
AREA
1140.0 m2
YEAR
2017
LOCATION
Shiraz, Fars Province, Iran
CATEGORY
Apartments
Text description provided by architect.
In Gheisizadeh residential apartment project, our main effort was to provide the maximum possible outdoor space to the residents, while creating the maximum visual privacy from outside to inside.
The initial idea was to create a flexible and variable building façade.
The intention was to reach the desired result by changing the openings, "While giving the residents the right to choose their level of privacy".
The effort was to, while respecting the introversion aspect of the residential units, consider implementing a terrace to protect the disturbing severe direct sunlight in summer and benefit from the sunlight in the cold weather of winter because of the warm and dry climate of Shiraz.
As a result, after the trial and errors on different materials, we chose the metal punched sheets with furnace colour coating. These tiles are connected to the terrace by the hinges and can bend on each other.
When the hinges are closed, there is no visual connection from the outside; In addition, due to building front elevation which is located at the southern façade and also 80 degrees sun radiation in the summer noon of Shiraz, this type of facade controls the disturbing summer light.
We implemented green elements in the vertical wall of the facade to induce more "sense of home" and to link with natural materials which controlled light and view in residential spaces. Jasmine Dutch and Pich Amin-o-dowleh were our plant choices.
The windows are framed with boxes that were extruded from the façade surface, created shadows on the windows and the south facade. The frames were installed in a scattered pattern due to the visual aspect of the design and prevent monotony on the façade.
At night, in addition to the brightness of the light reflected from the punched holes, the small square openings on these sheets with coloured lights on the grey facade were created and ultimately all of these factors help to create a wall with visual and functional flexibility in the facade.
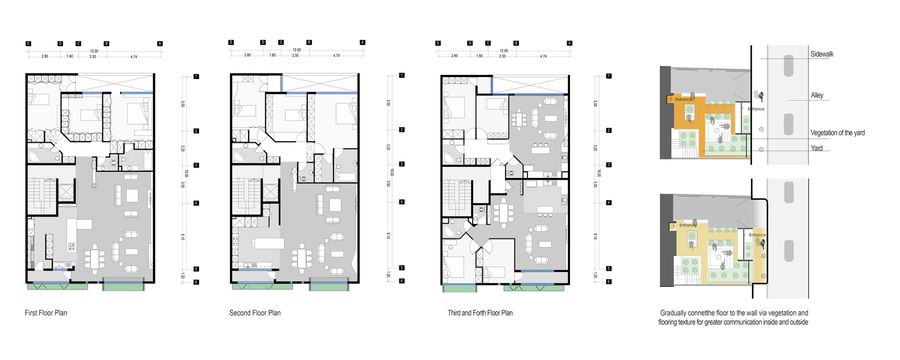
Another notable point was the creation of an integrity between the residential building and the yard, which caused the sheets to extend along the walls.
At the entrance, the flooring continues inside the yard to the sidewalk to emphasize its unique identity for the building.


























