
Multilevel House
ARCHITECTS
Studio SA_e
LOCATION
Kebayoran Lama, Indonesia
CATEGORY
Houses
PROJECT YEAR
2017
PHOTOGRAPHS
Ario Andito
MANUFACTURERS
Jotun, Dekson, Milan tile, Sakura roof, Toto
AREA
120 m²
Text description provided by architect.
Located in Pondok Indah Residential, south Jakarta, with dimension 20mx6m this house located in commercial areas it’s office, mall, retail and urban density. Multilevel house try to responses the site and urban’s people needs.
Nowadays, the urban society need house not only for home to sleep, eats, and family, but also they need additional facility that related with they activity. In this house, owner want many facilities which are for working, exercise, reading books and socialize. So that owner needs 2 master bedroom, living room, dinning room, mini library, and private work space.
In designing, Studio Sa_e uses the philosophy of krowakisme (krowak = hole), by utilizing voids and skylights the atmosphere from the top floor of the ground to the second floor is wider and infinite. With the provisions of a large void, it can be incorporated into buildings and air well circulated, and also inter-floor interactions can happen.
This building is designed using a multilevel concept in planning the layout to accommodate the many needs. Multilevel concept means a room are arranged in an "above-below" relation.
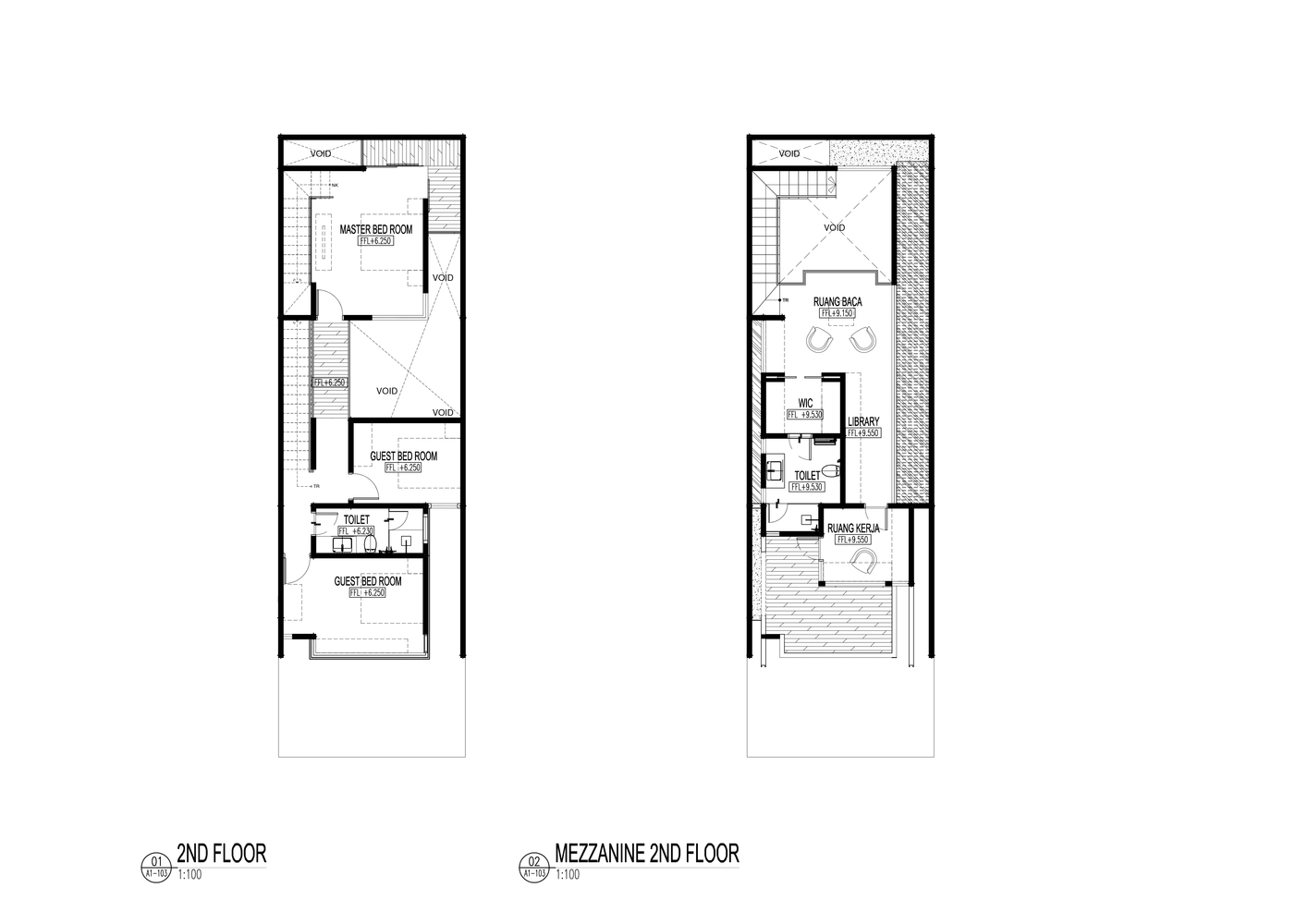
On the lowerground floor there are service areas such as kitchens, laundry rooms, maid rooms and there is a fitness room and powder room. The ground floor is a semi-private area with 1 master bedroom, then there is a dinning room, and a clean kitchen on the upper floor.
The 1st Mezzanine floor is filled with a living room for family and guest gathering areas, above which the 2nd floor is a private area of this house, there is 1 master bedroom, 2 guest rooms. Especially in the master bedroom area there is a 2nd mezzanine for the workspace, reading room, dressing room and master bathroom.
Each floor of the lower ground to the 2nd floor is accessed by stairs, the interesting thing is access to the master bedroom on the 2nd floor using bridge as a strategy to distinguish the level of privacy on the 2nd floor.
On the face of the building on the mezzanine 2nd floor, a balcony formed with a roof leads to an urban view around this house, and there is a window that framing the urban site.
The Materials uses a lot of natural elements such as natural stone, and wood that is applied to the stairs and the corridor floor and circulation.












































