Text description provided by architect.
The site is located in a farmers field of 10.000 m2 in the middle of an agricultural countryside 15 km south of Stavanger. The fields surrounding the houses are used as pastures for cheep.
The terrain enclosing the houses and courtyard is shaped like grassy slopes. The slops enclose both houses and patios.
In this way, warm outdoor spaces are created in an otherwise windy landscape. The site itself is bordered with a continuous stone row.
The residence consists of two volumes located on one floor only; the main family house and an annex with garage and guest department.
The total footprint is 250 m2. Two bedrooms are located in the entrance courtyard. Living room, kitchen, and dining area belong to one open space and orientated to the south and west. Master bedroom with its own bathroom to the north.
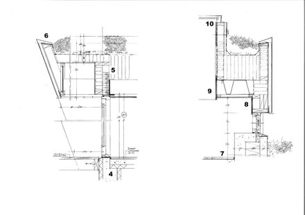
The housings are all covered with corten steel plates on the outside. The roofs are covered with grass.
In this way, the whole complex reminds of an old rusty iron plow abandoned in the middle of the fields. Inside all walls are covered with ash veneer.
The doors are made on the spot by the carpenters. Ceilings: ash veneer.
Flooring: Dinesen douglas spruce all over the house except granite tiles in the bathrooms and entrance hall.
The main contractor HøieUeland is to be honored for the excellent finish and high quality of all crafts.






















