
House with Three Eyes
ARCHITECTS
Innauer-Matt Architekten
PHOTOGRAPHS
Adolf Bereuter
YEAR
2017
LOCATION
Weiler, Austria
CATEGORY
Houses
Text description provided by architect.
The Summer’s family home is located on the edge of a forest on a small plateau above Weiler, outside the village centre at the end of a steep path. Only a handful of farmers settled in the area over the centuries. Following tradition and their common sense, they all used timber to build their farmhouses.
The Summer’s new house replaces an old building. The former farm – and farming as such – were abandoned half a century ago. Over the years, the empty building was badly affected by wind and weather and could not be saved. In the planning, the challenge was to adhere to the restrictions to building volume determined by the preceding building.
We made full use of the building’s cubature and, as a reference to the former building, added a characteristic cross gable. The owners’ wish for some private exterior space made things even a little more tricky.
At the end of our design process, we came up with this home for four people, complete with a cellar, hobby room, technical and storage rooms and a garage for 3 cars.
The living rooms comprise two floors at the face side of the house, looking out into the Rhine valley. The integrated terrace outside the kitchen/dining area gives access to the garden with its fountain and shed.
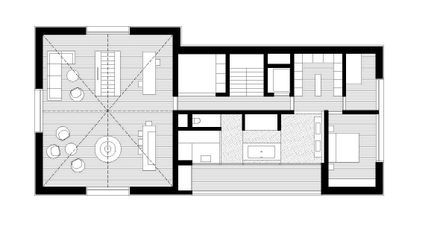
Inside, a narrow staircase leads to the living room on the upper floor, the heart of the house. The large, lofty, open-plan space houses a working area, bar, living area, and an open fireplace. Daylight enters the room through three big, circular windows.
Each of these windows points to a different geographic direction and invites different landscapes into the room: mountain, valley, tree. The entrance and staircase separate the living area from the bedrooms of parents and children, both located in the Eastern part of the house.
Construction time is kept short by using a high rate of prefabricated elements. Inside, untreated oak was used for floors, brushed, stained oak for furniture, and carefully sourced and treated local sandstone for the open fireplace.
After set-up on site, the raw outer timber/concrete shell was wrapped in a delicate, yet sophisticated envelope: The clean lattice façade running around the ground floor encloses discreet floor-to-ceiling openings and doors.
On the upper floor, a façade of rounded shingles and three big, circular windows leading up to the house’s distinctive roof. The house’s outer appearance is characterised by its larch façade and copper roof - both materials that will develop a natural patina. Despite its exposed location, the Summer House is an unobtrusive, effortless addition to the surrounding landscape.


















