
The Steinhardt Museum Of Natural History
LEAD ARCHITECTS
Michal Kimmel Eshkolot, Etan Kimmel, Ilan Carmi, Limor Amrani
LANDSCAPE ARCHITECTURE
Braudo-Maoz Ltd
ARCHITECT IN CHARGE
Limor Amrani
STRUCTURAL ENGINEERING
S.Ben-Abraham Engineering
LIGHTING DESIGN
Shiri Ziv
CONSTRUCTION MANAGER
E.D. Rahat Engineering Coordination and Management Ltd., Eliezer Rahat, Daniel Rahat
MANUFACTURERS
Parklex International S.L., Prodema, Travertine, Flotex carpet tiles, HPL cladding, Hook, Hunter Douglas
PHOTOGRAPHS
Amit Geron
AREA
10000 m²
YEAR
2018
LOCATION
Tel Aviv-Yafo, Israel
CATEGORY
Museum
Kimmel Eshkolot Architects has unveiled The Steinhardt Museum of Natural History at Tel Aviv University, the first museum of it's kind in Tel Aviv.
The Museum houses the spectacular and vast natural history collections of the University and will now serve as a center for academic research for its natural sciences staff.
The 10,000 square-meters building is environmentally-friendly and housed within a striking architectural structure composed of a wooden-panel shell. The wooden "treasure box," is thermally insulated to afford complete climate control of the interiors.
The Steinhardt Museum of Natural History will become an integral part of the city's cultural offerings and Tel Aviv University's campus, connecting its academic buildings with the botanical and zoological gardens behind.
The Steinhardt Museum of Natural History stands at the entrance to the Botanical Gardens of Tel Aviv University and creates a new entryway for visitors to tour the gardens in addition to the exhibitions.Floating above ground, the Museum's entrance plaza and gathering lawn allow a seamless view of the gardens from the street level.
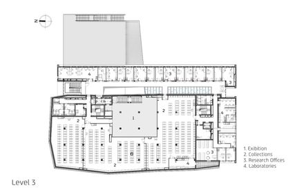
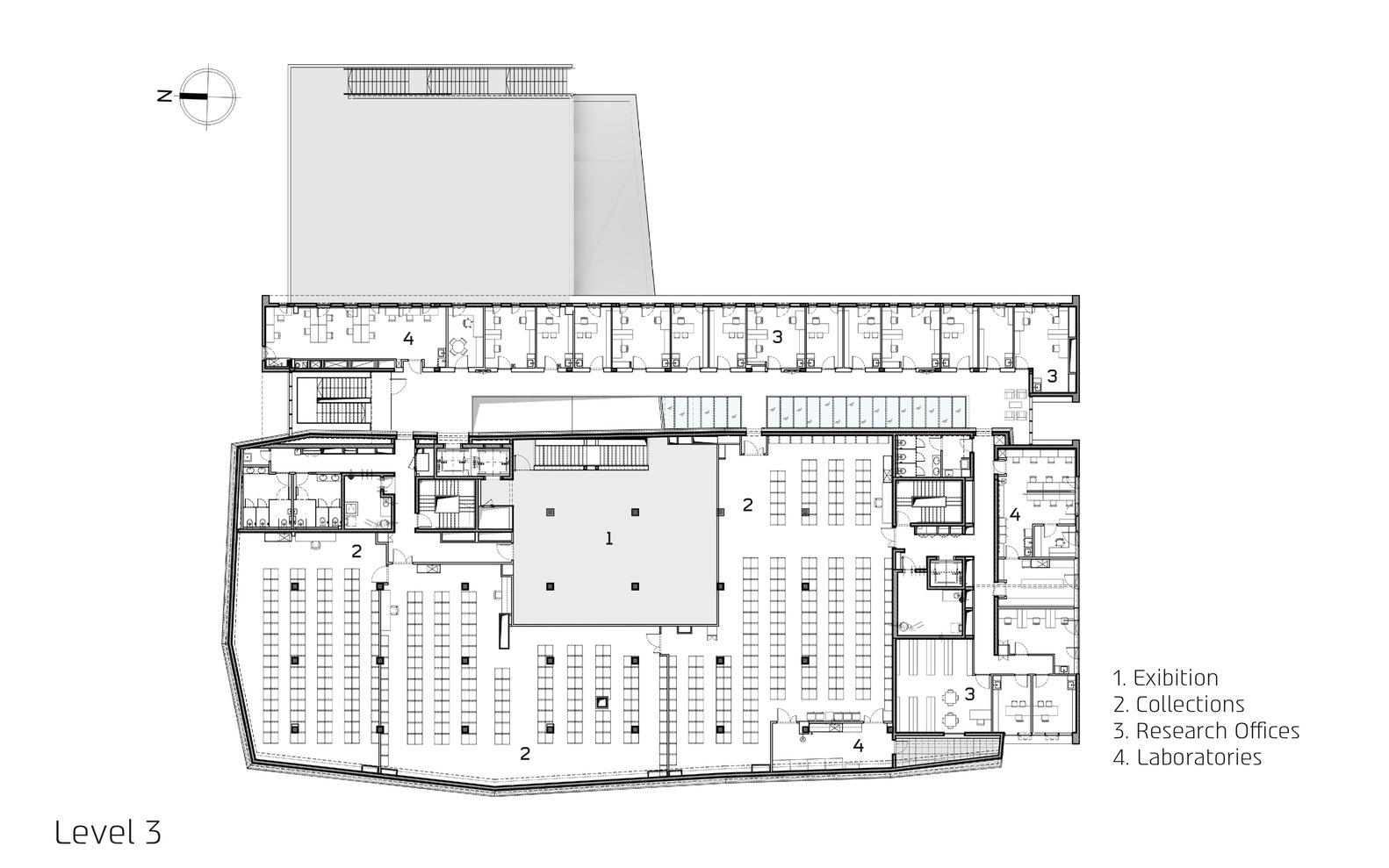
Kimmel Eshkolot Architects designed The Steinhardt Museum of Natural History to maximize the spatial restrictions of the designated plot and implement an interior architectural scheme to create exhibition spaces throughout.
Below ground, the firm created an additional 14,000 square-meters of parking space for museum visitors, Tel Aviv University staff and students.
The Museum's exhibitions start within display structures along the ramps leading up from the main atrium. These daylight exposed spaces lead into darker and larger designated exhibition areas.
The ramps are wide and with minimal slope, allowing visitors, including those with disabilities, to walk up to the "treasure box," while experiencing the different spaces of the building. The visit ends on the rooftop terrace, overlooking the botanical gardens, from which visitors can go directly down to a public square and enter the gardens.
The Steinhardt Museum of Natural History combines both exhibition spaces and research activities within a modern edifice wrapped with an insulated wooden shell. Above the main interior exhibition space on the building's upper levels, lies the research laboratories for Tel Aviv University's staff.
The researchers have access to the Museum's entire collections and have independent dedicated circulation and entrance paths.
Via the internal ramps and hallways, both visitors and researchers will be visually exposed to one another in a series of choreographed encounters through designed architectural structures and glass windows.


































