LOCATION
Bremen, Germany
TEXT
Mariam Gegidze, Emma Williams
ARCHITECT IN CHARGE
GEWOBA, Corinna Bühring
LANDSCAPE
Atelier Schreckenberg, Planungsgesellschaft mbH, Bremen
AREA
800.0 m2
CLIENT
GEWOBA
PHOTOS
Nikolai Wolff, Kay Michalak, Fotoetage, Bremen
PROJECT YEAR
2017
CONSULTING DESIGNER
Ian Warner, Johannes Siemer, S-T- A-T- E
EXECUTION PLANNING
Architect Dipl.-Ing. Kahrs
MEP
EKM Partner, fire protection Dehne, Kruse Brandschutzingenieure GmbH & Co.KG, Gifhorn
STRUCTURE / ACOUSTICS
Pirmin Jung Ingenieure, Deutschland GmbH, Bremen fire protection Dehne, Kruse Brandschutzingenieure GmbH & Co.KG
DESIGN TEAM
LIN Architects Urbanists, Giulia Andi, Finn Geipel, Philip König, John Klepel, Tobias Schlimme, Mattis Krebs, Maja Lesnik, Ines Dobosic, Bruno Pinto da Cruz, Daniel Nissimov, Jan-Oliver Kunze, Anna Heilgemeir, Veljko Markovic
MANUFACTURERS
EGGER, Hoppe, Sto, NIBE, ROCKWOOL, SIGA, Steico, Ampack, Bauder, Europa Lärche FSC, Fermacell, Ganderkesee, Gerhardt Braun, Modell Tokyo, System Quantum, Typ EUROSTRAND, Typ Katherm 80, Typ Klemmrock, Typ Rissan and Sicrall, Typ Sisalex 500
Bremen Like many German cities, Bremen is confronted with an increasing housing shortage and a growing demand for affordable housing.
In response to this, the largest Bremen Housing Association, GEWOBA, has prudently taken on a supplementary extension to their existing 45,000 plus housing stock. In 2011, within the framework of the competition “ungewöhnlich Wohnen” (unusual living), five exemplary lots from a postwar housing area were chosen to investigate the adaptability of the area.
The proposals considered contemporary demands for affordable and flexible housing that could offer manifold inhabitant configurations. These housing areas in the Gartendstadt Süd of Neustadt Bremen, offer generous green open areas formed by homogenous four-storey housing blocks.
CUBE HOUSE
The high adaptability and multiplicity of the modular prefab timber system makes the Bremer-Punkt a pilot project for supplementary extensions to social housing on an urban scale.
The urban niches are activated by the punctual integration of four-storey timber cubes. With a surface area of only 13.35 x 13.35m, the cube houses react sensibly to the existing buildings, granting the character of the green open spaces of the estate to keep their appearance.
The new buildings are designed as a modular timber prefab system. This system allows flexible layout possibilities for site specific needs and responds to individual demands.
The houses can adapt to differing apartment combinations, surface area, circulation, facade, and building form requirements.
PROTOTYPE
In February 2017 the first three Bremen-Cubes will be completed in the Gartenstadt Süd.
With a 44-58m2 living area (two to three rooms), these smaller apartments succeed in providing affordable housing with a higher than average standard of living, timber construction system, generous window openings, spacious private outdoor areas, and optimised south-west orientation.
The new buildings present an upgrade to the housing stock and the local area, and afford existing tenants intergenerational equity, specifically for those requiring barrier-free design solutions. A collective living project is housed in the third Bremer Cube, adding new energy to the area.
FROM PROTOTYPE TO SERIAL HOUSING
From the conceptual idea through to the finished and final serial housing typology, an intensive design process has been applied.
The cognisance of the planning process for the prototype was evaluated and developed with regards to construction methods, site development and spatial efficiency optimisation of the new constraints. The Bremen-Cube has been worked through as a multiplicitous, serial housing typology.
It realises contrasting housing mixes with predetermined apartment layouts of different sizes and organisation. The new addition offers more layout variability and more useable living space. The optimised building envelope provides the building with a good energy efficient surface-area-to- volume ratio.
At present there are seven Bremen-Cubes in planning and realisation, in the districts Neustadt, Kattentum and Schwachhausen – followed by more buildings to be implemented.
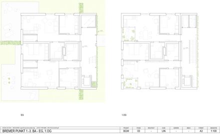
FLOOR PLAN KIT
The Bremen-Cubes can accommodate up to eleven apartments per building. The floor plan kit showcases a catalogue of twenty-two apartment typologies, which have the possibility to be combined with each other in over sixty variations.
The serial building typology compliments the existing housing with new flexible and barrier-free floor plans. The apartment sizes range from a one-room apartment of 30m², to a six room apartment with 138m².
The multiplicity and customisation of the apartment configurations ensures that each site is able to offer an individual proposal to differing user-groups. All the apartments are barrier-free and two apartment typologies are fully wheelchair accessible.
INHABITANTS
The open plan layout allows for multifaceted living models; living and working are equally conceivable as are many possibilities of family constellations, single households or collective living forms.
Within the context of current affordable housing demands and discussions on living space requirements, the Bremen-Cube offers flexible and site-specific proposals for public or privately funded models, providing a high social mix and intergenerational equity.
Nineteen of the twenty-two apartment typologies fulfil the requirements of the “Bremer Wohnraum-Förderungsprogramms” (Bremen housing funding board). The third Bremen-Cube will be realised in cooperation with the “Martinsclub Bremen e.V.” as an exemplary community housing project.
The project looks to house a heterogenous mix of young people and elderly, disabled, refugees and low-income persons and families together. The GEWOBA has complied a floorplan catalogue of the versatile combination possibilities of the housing typologies.
LIVING QUALITY
A full height glazed loggia is connected with the kitchen, creating a spatial extension, which becomes an integral part of the living area.
This combination of loggia and kitchen creates a high quality living space, where cooking, dining, playing, and gardening are made possible. The green living quality is accentuated on a variety of scales through the careful placement of the cubes, as well as with the large facade openings with their immediate connection to the outdoor vegetation.
The open circulation balcony is a meeting point for the inhabitants, and forms a node between inside and outside. The second generation will offer high er flexibility for different apartment typologies and sizes.
Through the use of large sliding doors, rooms can be closed off, divided or extended according to need.































