
Holiday House On Prophet Ilias Mountain
AREA
100.0 m2
PHOTOGRAPHS
Giorgos Sfakianakis
MANUFACTURERS
Arper, HAY, Halo, Isomat, Valone, Vitra
PROJECT YEAR
2018
Text description provided by architect.
The holiday house is located on the highest point of Santorini Island, on ‘Prophet Ilias’ mountainside.
The building faces to the southwest and has a view of the Aegean Sea and the volcanic landscape.
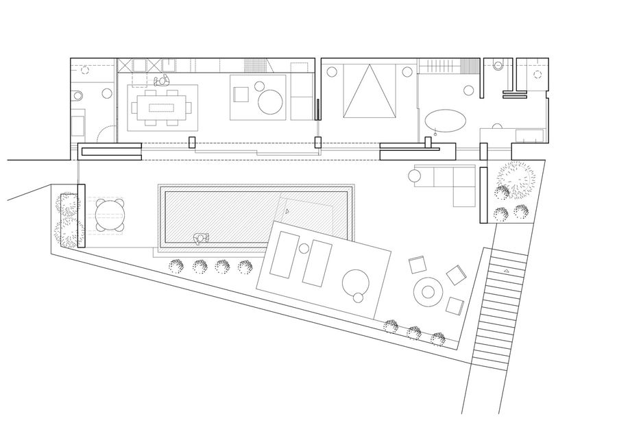
The residence consists of a living room, a dining area, a kitchen, a main bedroom and two bathrooms oriented towards to the view.
The excavation material that has resulted during the construction period, was used to shape the main façade of the house and its surrounding landscape.
The house is integrated to the cliff-side, leaving the least possible imprint.
Aim of the project is to merge the interior and exterior space of the house. The long, sliding glass door of 10meters length, opens and links the relaxation-cooking interior zone with the courtyard and the swimming pool.
The interior space becomes an exterior one, under a shadow and at the same time expands into an infinity pool, an exterior lounge area and a wooden deck that compose the external space.
Two main free standing walls highlight the two entrances of the holiday house, through two lateral staircases.
Inside the residence, sections made by bricks, wood and glass separate the different rooms. Skylights on the rooftop allow the natural light into the space.
Natural materials like oak, walnut wood, grey and beige rough marbles and black steel create warmth, while some colourful pieces of furniture, create a joyful mood.
Stone and concrete are the materials that define the exterior form of the house.
Wild Mediterranean plants, some of them into cylindrical pots made by black steel, are sparsely placed outdoor.


















