ETC House
ARCHITECTS
Rakta Studio
LOCATION
Bandung, Bandung City, West Java, Indonesia
PROJECT YEAR
2018
PHOTOGRAPHS
KIE
CATEGORY
Recreation & Training
MANUFACTURERS
Kanmuri Roofing, Lamitak, Venus Tile, YKK Nexsta
LEAD ARCHITECTS
Vidor Saputro, Ronald Adikusumo
Text description provided by architect.
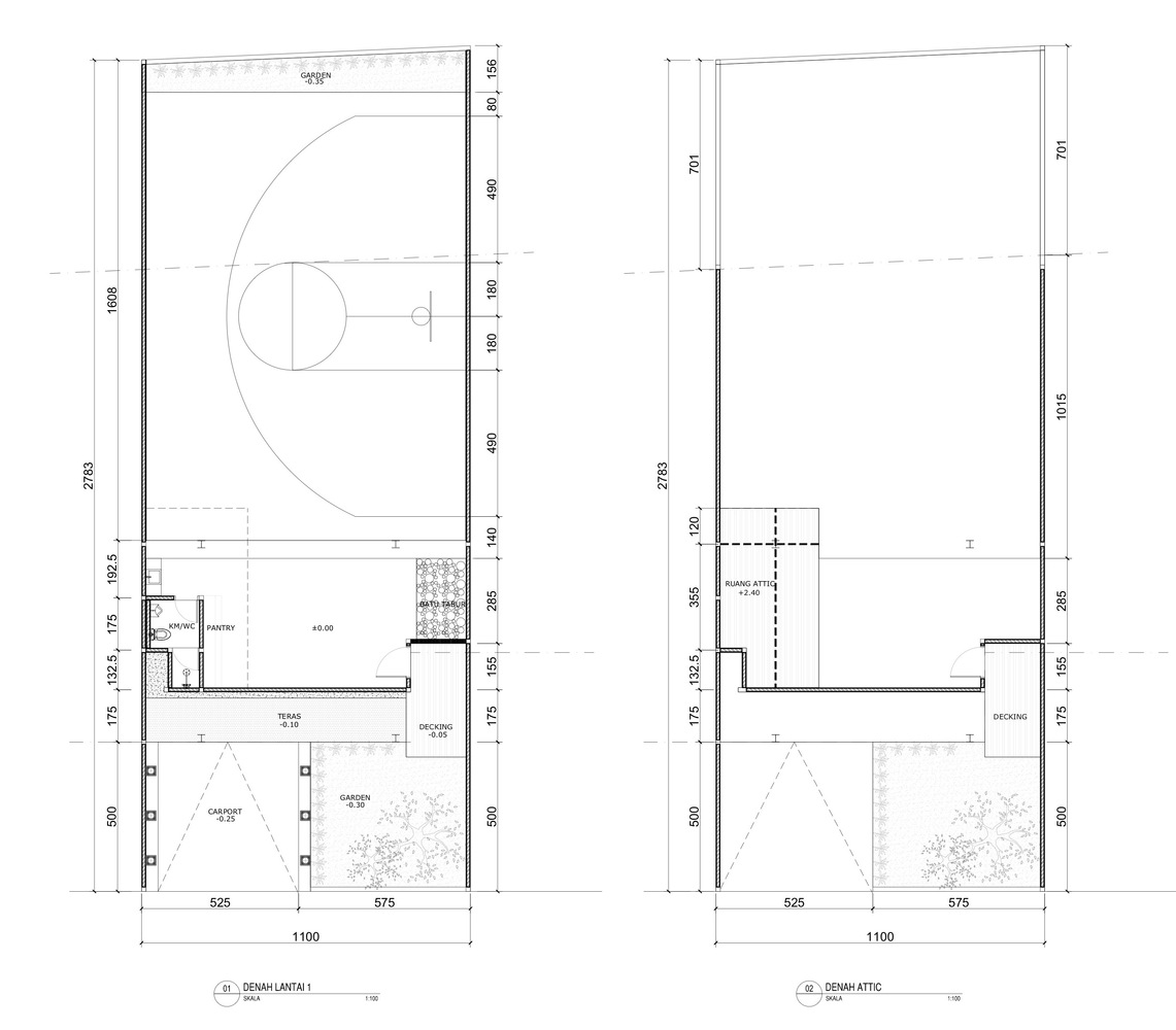
Located in a residential complex, the ETC hobby house is a 150 m2 building that was built to meet the need of a personal basketball playground for the children of the house owner.
The three children have a hobby playing basketball and their friends often gather there to spend their free time.
The "Rakta Studio" Architecture Firm chosen by the house owner to create a "hobby house", applies the Japanesse style design concept combined with the Tropical Modern style that has become a characteristic design of Rakta Studio itself.
ETC hobby house has the following space functions: sitting room, kitchen, toilet, and carport.
The building also has a garden planted with grass and ornamental plants so as to provide cool air and comfort for those who enter it.
Ornamental plant pots are also placed on the side of the building, facing the ranks of iron pillars that function as a dividing wall.
The inner wall is decorated with pictures of basketball games in the form of a black silhouette, thus clarifying the function of the building as a place to play basketball. This wall borders a simple modern kitchen.
When the day was approaching late afternoon, the beautiful lights mounted on the floor of the hallway exuded a nuanced feel and beautified the room.
In the corner of the room is a bamboo hanging chair that can be a place to relax while watching a basketball game or a place to rest.
Standing among other residences, ETC house hobbies are the most unique homes among other houses and always attract the attention of everyone who passes them.











