CATEGORY
Houses
LOCATION
Thảo Điền, Vietnam
ARCHITECTS
Vaco Design
AREA
1083.0 m2
YEAR
2018
PHOTOGRAPHS
Quang Dam
MANUFACTURERS
DuPont, Saint-Gobain, Toto, Acor, Blum, DHL, District Eight, Galaxy lighting, General Membrance, Hygolet de México, Lumi, M-Green, MIWA, Schomburg, TAC, VACO, Vietceramics
Text description provided by architect.
Inspired by Villa Savoye and the openness of vernacular architecture, the house is a steel box sitting resting above columns, freeing up the ground floor space.
The design is an answer to the minimal contemporary lifestyle of the young professional, who possesses an extensive collection of cars in the tropical climate of Ho Chi Minh City.
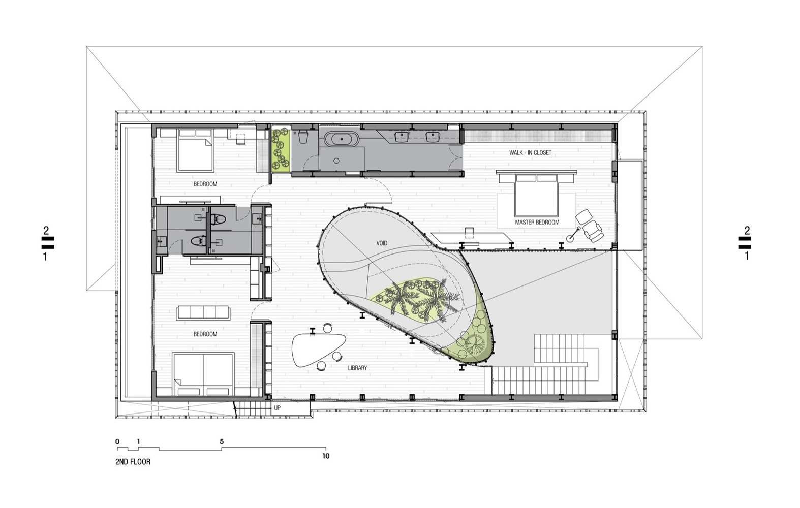
The basement has the capacity for seven cars, with a central courtyard for natural light and ventilation.
The main entrance begins here, following a ramp through this open space filled with greenery, leading up to the upper level with the open living, kitchen and dining space.
The ground floor is open and completely transparent, without any dividing wall, giving a visual connection across the whole site.
The functional space is designed to be directly opened to the courtyard and the surrounding landscape. From this floor, residents can have a direct view of the automobile collection.
The structure is minimized, utilizing long spanning beam, giving the space its openness and elegance.
With the backyard as the main private space for the family, the pool is located, directly accessed through the kitchen and dinning space.
The space is covered with an expansive canopy to protect the space from the harsh tropical sun and monsoon, while allowing users to experience these natural elements.
The design is inspired by the act of layering present in Vietnamese tradition. Traditional clothes are combinations of layered thin fabric, graceful yet revealing, an answer to both the climate condition and traditional courtesy.
Vietnamese vernacular architecture reflects the same ethos. Buildings are covered with layers of skins, made of timber or natural materials, or strategically covered through layers of awnings, corridors, and halls.
These gestures simply a graceful answer to the local climate with an abundance of sunlight and rain and a culture that values privacy and connection between man and nature.



























