Lane B House
LANE B HOUSE
PROJECT YEAR
2019
LOCATION
Nashville, United States
TEXT
Jillian Japka from Minimalissimo
MANUFACTURERS
Bona, BTicino, Cooper Lighting, Kichler, Legrand, Miele, Porcelanosa Grupo, SOSS, Unilux, Victoria & Albert, WASCO Skylights, Baldwin, Hitson & Co, Juno
Text description provided by architect.
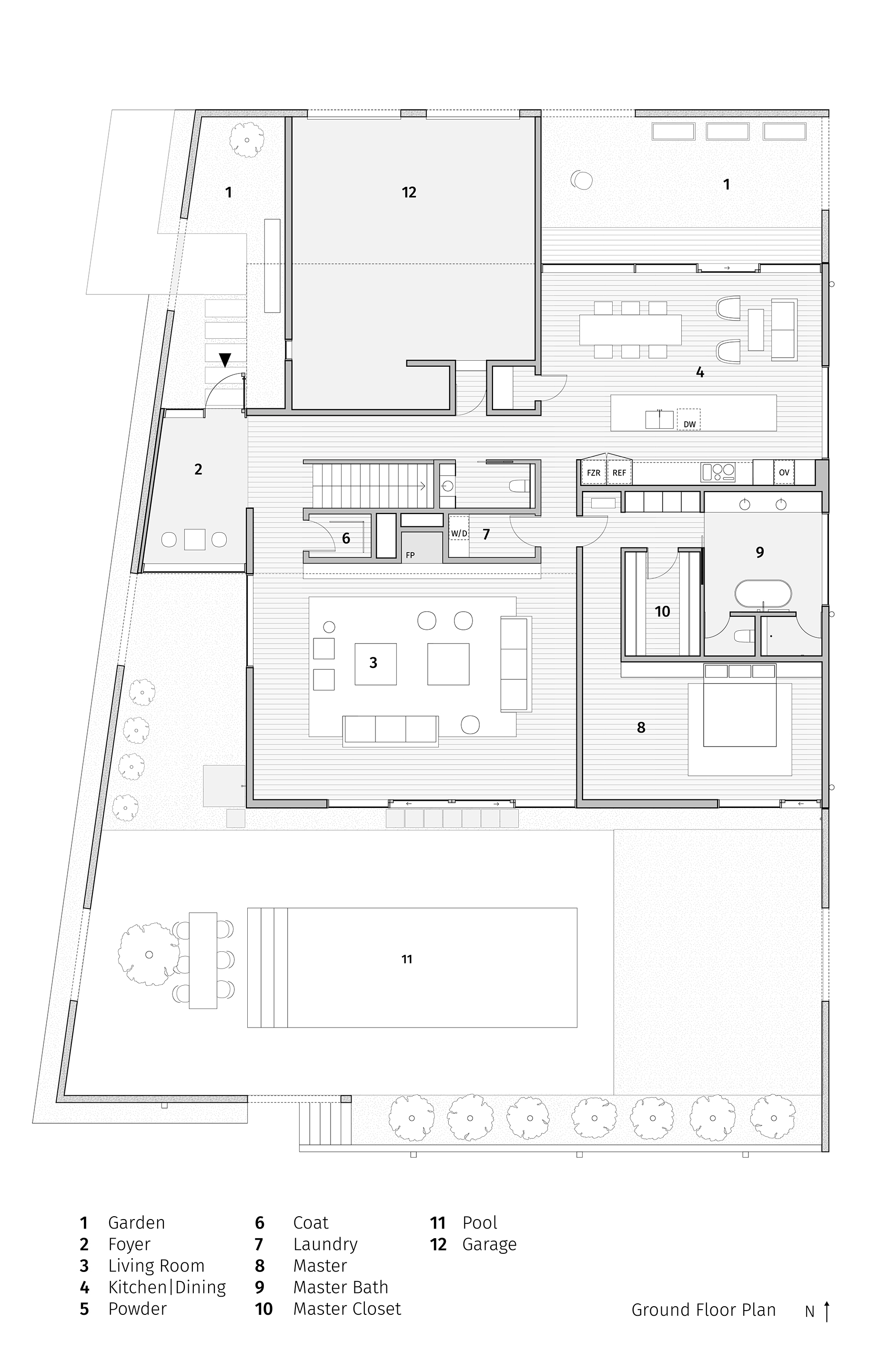
Lane B is a modern home that seeks to explore the relationship between the home as protection and the home as an oasis.
The Nashville home was designed by Studio YUDA, of the complementary home Lane A, also located in Tennessee.
From the street, the dominating feature of Lane B is a low, grey wall that wraps the home. The wall envelops the home and acts as a barrier from the street, providing privacy.
Large cutouts are utilitarian in nature, creating openings for entry and viewing. Step just beyond the wall and the view of the home completely changes.
A feeling of peacefulness emerges, aided by a perfectly designed garden in the space between wall and home. The interior is bright and warm, illuminated with natural light from the many windows.
A feeling of peacefulness emerges, aided by a perfectly designed garden in the space between wall and home.
On the facade, the smooth white color contrasts just enough with the light grey beyond. Oversized windows create a relationship between interior and exterior, connecting the home to the garden just outside, and further, the street as framed through the wall’s openings.
The interior is bright and warm, illuminated with natural light from the many windows. The fenestration is so prominent that the boundaries from inside to outside are blurred, and one almost experiences the interior as exterior.
Endlessly sunny rooms give way to hallways that open up to the sky—a remarkable design feature. Light wood floors and mostly white furnishings lend an airy, dreamlike quality to each room.
Everywhere you turn, Lane B plays with openings and closings, opaque and transparent, light and shadow.















