
Yunyang Civil Activities Centre
ARCHITECTS
Tanghua Architect & Associates
PHOTOGRAPHS
Chen Yao
AREA
28857 m²
YEAR
2011
LOCATION
Chongqing, China
CATEGORY
Community Center
Text description provided by architect.
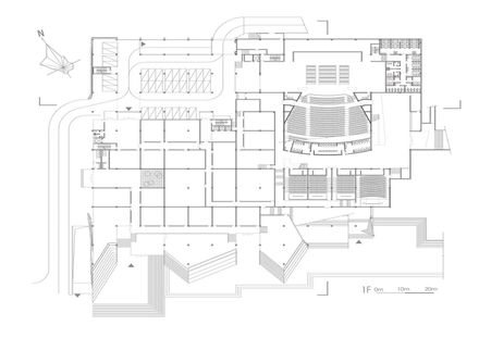
The design consists of a building complex, an open plaza and a bridge. A three by three grid system integrates nine courtyards as a whole.
It slopes down to fill the gap between the mountain and the River, both in terms of the horizontal span and the vertical height difference on both sides of the site.
This five-storey complex contains a theatre with 1,200 seats, and a planning exhibition centre, a museum, a library, a cultural palace and a youth activities centre.
This passage functions as a guiding path to provide the access to a variety of activities within the building.
The stepped roof creates a space that allows public accessing and provides a view platform echoing to the River Dam.
























