
History Of Science Centre
ARCHITECTS
Hoehler + alSalmy
AREA
3600 m²
PHOTOGRAPHS
Capture Media, Nathan McCall, Osama Al Kharusi, Gijo Paul George
YEAR
2016
LOCATION
Halban, Oman
CATEGORY
Science Center
Text description provided by architect.
The History of Science Centre acts as a mediator bringing past Islamic sciences of the "golden age" in relation to the current university studies at the German University of Technology (GUtech) in Halban, Oman.
The building aims to create a link between art and science with nature and geometry whilst symbolizing infinity and divinity.
Numerous innovative techniques were used to deliver the successful design of the project. The building is divided into two sections; an external geometrical standalone concrete shell enveloping the inner building.
The chosen geometric pattern of the shell structure was derived from the Qarawiyyin Mosque and University (AD 857) known as the centre of knowledge and science for the entire Mediterranean region.
The width of the geometrical pattern changes according to the direction of the sun; controlling both the temperature and light of the space whilst adding to the architectural significance of the structure.
The entire internal surface is inclined in accordance with the sun and wind direction to further assist with the temperature control element.
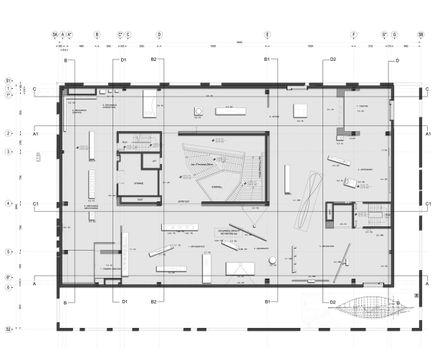
The main entrance to the building is highly defined by the purposely placed cut pattern. On the ground floor, a free-standing box protected and wrapped by the facade provides 1,200sqm of exhibition space.
This, together with a heritage research library, a coffee shop and a children’s play area overlook a dhow placed in the shallow birth; made to resemble a marina as a tribute to Oman’s prolific seafaring history.
The dhow was specially made and built for the Centre using traditional building techniques as a replica of old Omani vessels.
At the center of the building are two endless staircases creating an architectural journey rising to the first floor comprising the main exhibition of artifacts from around the globe, including an active sundial that utilizes a specific hole in the geometrical shell to tell the time.
Each 2-scaled window pattern is derived from the hourly sunspots, arising from the sun’s position on 21st July 2016.
The Exhibition Gallery contains a range of international historical artifacts displaying the development of applied science from the early age of classical Greek-Roman era, through to the Islamic period and into the present society.
The gallery is divided into three sections; the first segment holds a permeant exhibition displaying a diverse range of Mathematical, Geological, Navigational, Astrological, Optical and Mechanical instruments, artefacts and interactive displays.
The second section contains the Scientific Library of History of Science. The final section is for educational programs which will be linked to the academic programs at the GUtech university.
The sloped central square in front of the university campus expands as a public area to the ground floor of the building.
The central square is formed based on the lines of the geometrical pattern that extend to create a carpet-like effect with green islands and water features.
The project did not differ from the original design and has been constructed as per the given specifications as an exact replica of the original assembled model.
The construction was finalized within schedule and budget parameters, with zero reported injuries and to full satisfaction and exceeded expectation from all involved parties. The first exhibition will be open to the public this late 2018.












































