Praia Dos Lagos Residence
ARCHITECTS
Sotero Arquitetos
STRUCTURES
V&N Engenheiros Associados Ltda
LIGHTING
Omni Light
ELECTRICAL
LL Projetos
GLASS FRAMING
Princesa Vidros
CONSTRUCTION
A&G Construtora
WOOD FRAMING
Demuner
PHOTOGRAPHS
Leonardo Finotti
SITE AREA
1126 m2
YEAR
2011
LOCATION
Camacari, Brazil
CATEGORY
Houses
Text description provided by architect.
The site of 1126 m2 presented for the "Praia Dos Lagos Residence" project has very interesting features. The site can be seen from the lagoon. Land and sea are fused. The slightly hilly topography slopes from the street level almost three meters in height.
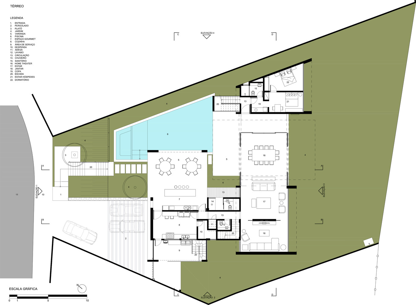
The intervention strategy was directed to set a building where the views of both the lake to the northeast and the sea to the southeast, were repeated. So we split the house into 4 volumes covering different sectors and programs.
The common areas of the residence were placed in the northeast / southeast axis in order to allow the contemplation of the landscape in places of greater permanence of users. The private and service sectors are located to the south of the site, in two volumes, taking advantage of better orientations for ventilation and lighting for bedrooms. The guest pavilion operates independently north of the site.
Access to the residence is through a concrete staircase, creating a void of 2.80 meters on a landscaped slope. At elevation 7.00, we have access to the pool and whirlpool, and a reception garden.
Taking advantage of the slope, we put on the ground, at elevation 7.00 to 2.80 meters from street level, the spaces to make the most of the residence and service program. A concrete emptied box marks the access to the public sector of the house, the first of the four volumes identified by the user.
With a slab of 60 m2, and supported only in the ends, the shadow of the balcony and the gourmet space is projected. In this box the kitchen and service areas also operate, and access to the basement.
Still on the ground, there is a play of tensions between two volumes that face the sea with a sheet of concrete that connects them. Two reinforced concrete beams, with a height of 75 cm, cross brace the slab that defines the dining room and the wooden deck.
In addition to providing a space without the interference of pillars, the slab promotes the connection between the bedrooms of the residents with the guest pavillion.
The guest pavilion has a separate entrance from the rest of the residence. Its operation is made viable through a program with pantry, living room and bedroom on each of the two floors. A concrete staircase with lateral glass enclosures in wood, connects the land with the first floor of the volume.
The volume where the main bedrooms are located shelters the ground, the home theater and the living room. On the first floor are the bedrooms of the children and the master suite, both oriented to the sea.
Finally, on the ground floor at elevation 4.10, Portuguese paving stone promotes integration between the parking lot and the street. This level houses the service area, cellar, service bedroom and bathroom. A concrete pergola delivers shade for parked cars, creating a transitional space between the street and the private atmosphere.

















